Contact

La totalité du niveau 1 est dédiée aux lofts 2, mais il en existe également quelques uns au niveau 3.


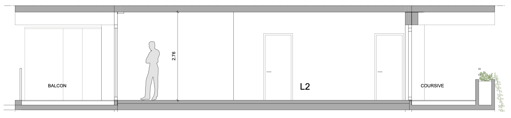
Ces appartements, d’une surface de 43 m2, sont en simplex et proposés avec un seul plan d’aménagement parfaitement optimisé pour un effet volume maximum et une hauteur sous plafond inhabituelle. Une chambre coté coursive, un bloc sanitaire central et un séjour /cuisine ouvert sur la grande terrasse avec vue sur le jardin central. Le loft 2 est idéal pour un premier achat immobilier en résidence principale (TVA à 5,5%) ou un investissement locatif de qualité et atypique (Pinel zone B1). 

Cliquez sur le L2 de votre choix pour
voir le plan de votre futur loft

Tranche 2 :

VOUS AVEZ SÉLECTIONNÉ UN LOFT L2
NIVEAU 1 OU NIVEAU 2 DE 43 m2

effet volume maximum et hauteur sous plafond inhabituelle

Contact

Utiliser le formulaire du site

Formulaire

Important : les plans présentés sont indicatifs, la porte d’entrée est soit à gauche soit à droite, certaines autres spécificitées peuvent exister suivant les lots.
En fonction du lot souhaité faites le point avec votre commercialisateur, il à toutes les variantes de plan de vente en sa possession !

Vue de coupe du L2

 
Privacy Settings
We use cookies to enhance your experience while using our website. If you are using our Services via a browser you can restrict, block or remove cookies through your web browser settings. We also use content and scripts from third parties that may use tracking technologies. You can selectively provide your consent below to allow such third party embeds. For complete information about the cookies we use, data we collect and how we process them, please check our Privacy Policy
Youtube
Consent to display content from - Youtube
Vimeo
Consent to display content from - Vimeo
Google Maps
Consent to display content from - Google
Spotify
Consent to display content from - Spotify
Sound Cloud
Consent to display content from - Sound